Projects  |  About  |  ︎



Projects  |  About  |  ︎


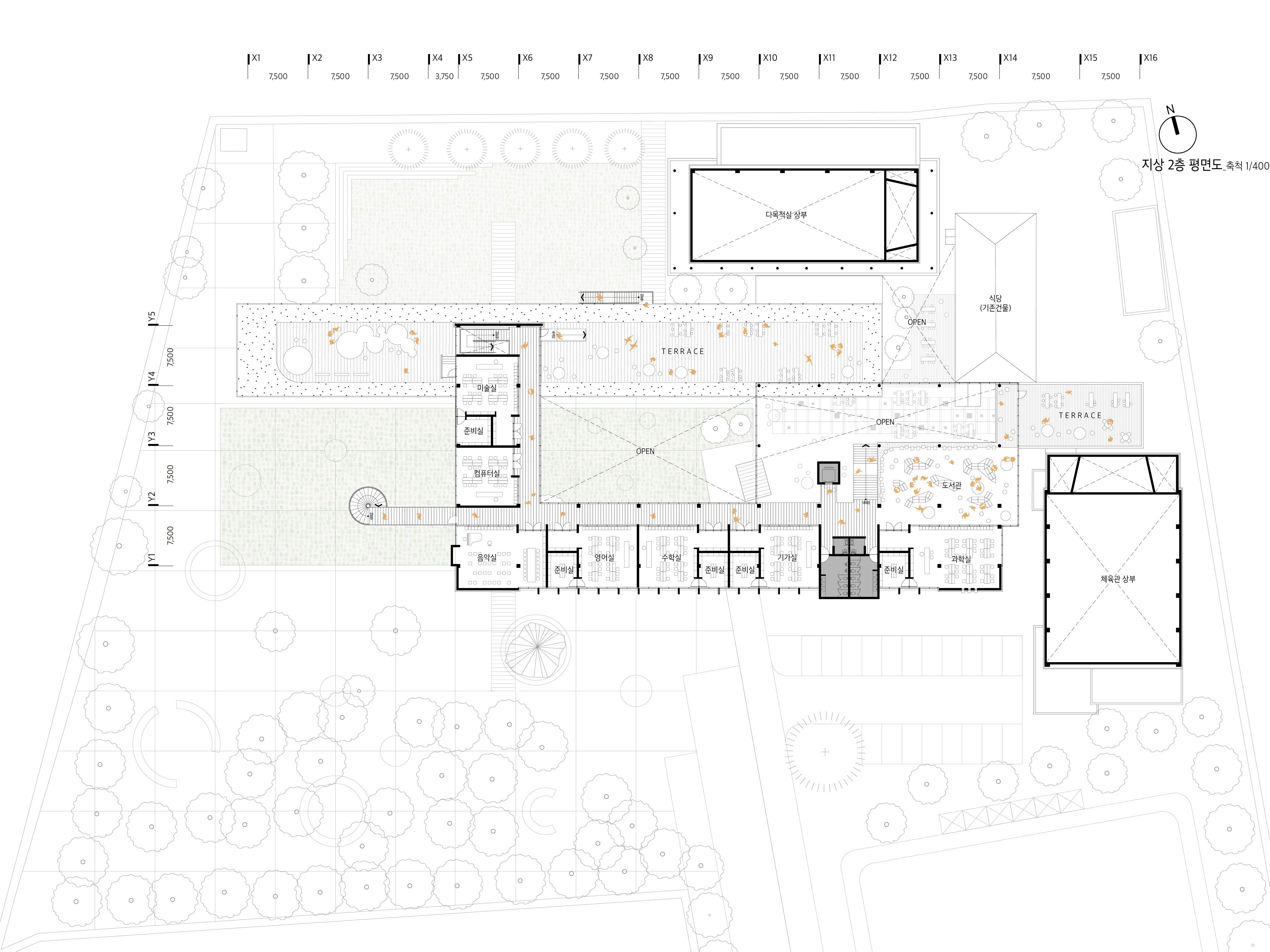
Chunseong
Middle School


Location    Chuncheon-si, Gangwon
Year    2024
Use   Educational
Area    2,526 m2
Condition    Proposal (3rd prize)